Premium Private Lounge
서울 역삼동 RITZY
인테리어 디자인 제안서
Client
RITZY
Date
2025. 03. 31
디자인 문의 | iisometricdesign@gmail.com
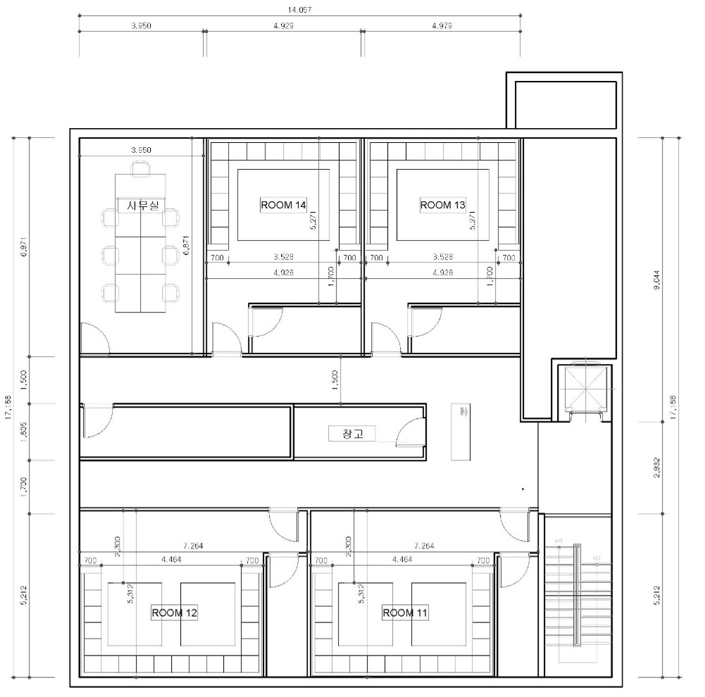
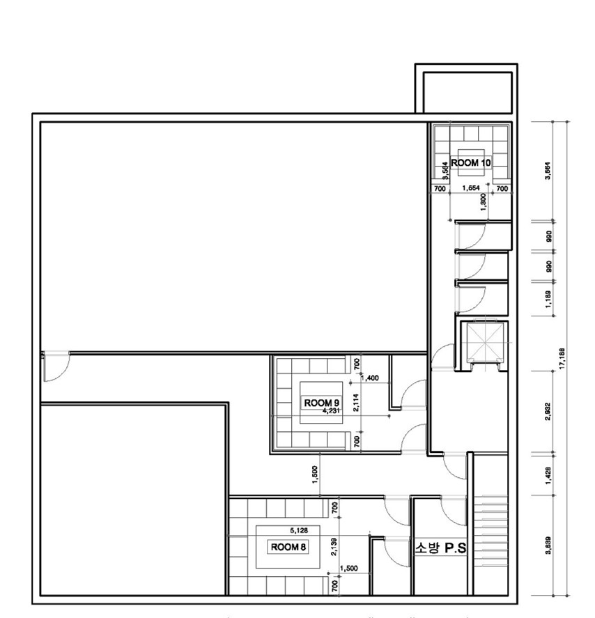
01. Floor Plan
Layout & Zoning
지하 1층
ROOM 1~7, 대기실
지하 2층
ROOM 8~10, 소방 P.S
지하 3층
ROOM 11~14, 사무실, 창고
Capacity Plan
14
VIP Rooms
3
Floors
B1F
B2F
B3F
02 PERSPECTIVE VIEW
VIP ROOM — ALT1
따뜻한 카멜 톤 레더와 내추럴 오크 우드가 어우러진 공간입니다.
은은한 간접조명과 기하학적 아트월이 세련된 분위기를 연출합니다.
Material Palette
02-1. MATERIAL PALETTE
VIP ROOM
ALT1
Color Scheme
Camel Leather
Sofa
Natural Oak
Wall & Ceiling
Cream Marble
Table Top
Walnut Wood
Floor
03 PERSPECTIVE VIEW
VIP ROOM — ALT2
깊고 묵직한 블랙 레더와 다크 우드의 조합으로
중후하고 세련된 프라이빗 라운지 분위기를 연출합니다.
Material Palette
03-1. MATERIAL PALETTE
VIP ROOM
ALT2
Color Scheme
Camel Leather
Sofa
Natural Oak
Wall & Ceiling
Cream Marble
Table Top
Walnut Wood
Floor
04 PERSPECTIVE VIEW
VIP ROOM — ALT3
다크 월넛과 모던 블랙의 조화로
깊이 있는 고급스러움을 표현한 공간입니다.
Material Palette
04-1. MATERIAL PALETTE
VIP ROOM
ALT3
Color Scheme
Dark Leather
Sofa
Dark Walnut
Wall & Ceiling
Beige Marble
Table Top
Walnut Wood
Floor
05 PERSPECTIVE VIEW
CORRIDOR
프라이빗 라운지로 안내하는 동선으로,
탬바보드와 모자이크 타일이 품격 있는 첫인상을 선사합니다.
Material Palette
05-1. MATERIAL PALETTE
CORRIDOR
Color Scheme
Tamba Board
Wall
Mosaic Tile
Floor
Big Slab
Counter
06. Gallery
Integrated Perspective
VIP ROOM — ALT1
Warm camel leather lounge
VIP ROOM — ALT1
Geometric art wall detail
VIP ROOM — ALT1
Natural oak ceiling louver
VIP ROOM — ALT1
Ambient lighting view
VIP ROOM — ALT2
Sophisticated black leather
VIP ROOM — ALT2
Moody ambient lighting
VIP ROOM — ALT2
Dark wood ceiling detail
VIP ROOM — ALT2
Private lounge atmosphere
VIP ROOM — ALT3
Dark walnut modern elegance
06. Gallery
Integrated Perspective
VIP ROOM — ALT3
Deep walnut interior
VIP ROOM — ALT3
Luxurious seating area
VIP ROOM — ALT3
Premium lounge view
CORRIDOR
Premium entrance experience
CORRIDOR
Tamba board wall detail
CORRIDOR
Mosaic tile flooring